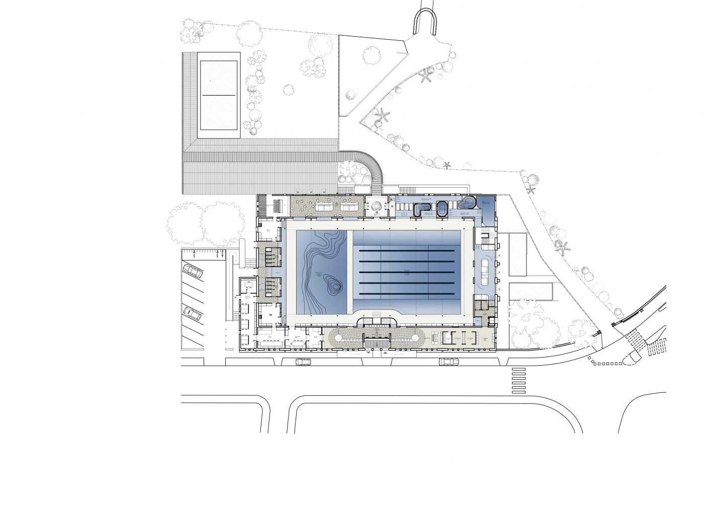
Qui n'a jamais eu envie de partir en vacances au borde de la mer? Imaginez vous sur le sable chaud, bronzer au soleil ou jouer dans les vagues, et tout cela au coeur de votre quartier. Implanté dans le gymnase Léopold Bellan, à Bry-sur-Marne, ce nouveau centre aquatique propose une destination d'évasion inédite pour tous ceux n'ayant pas la possibilité de partir en vacances. Notre intervention s'est donc axée sur la mise en place de dispositifs architecturaux simples évoquant subtilement des sensations liées à la plage, telles que les longues distances de marche, les pentes douces, les grandes étendues d’eau, et bien sûr l’apport important de soleil. Destination Léopold Bellan est un lieu lumineux et décloisonné, pour se sentir comme à la plage en région parisienne.