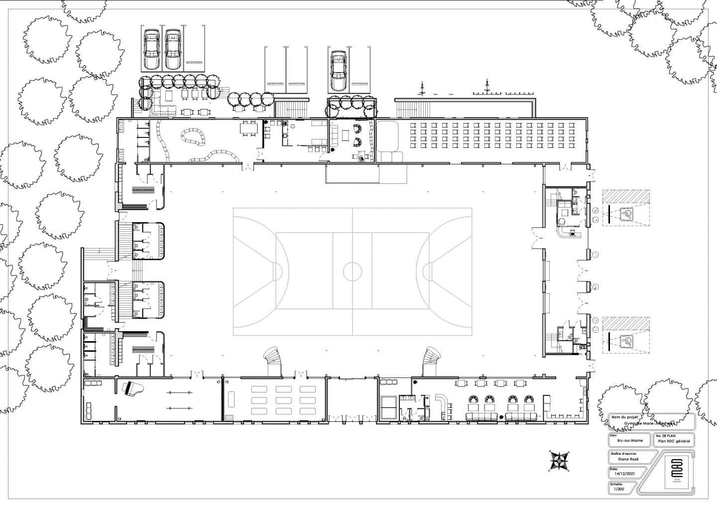
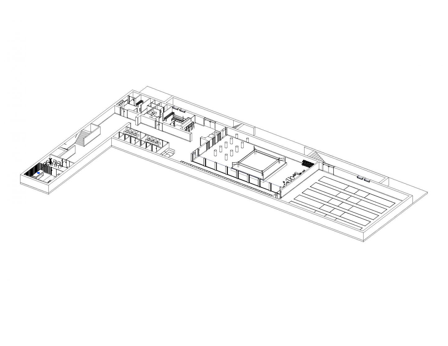
Salle de boxe

Aujourd’hui, peut-on concevoir une architecture favorisant le respect et le bien-être dans le milieu sportif?


Bibliothèque
Salle de yoga

Mettre en avant les valeurs du vivre ensemble, le fait que tout le monde devrait avoir les mêmes chances.

Raphaël Frey – membre de l’association étudiante lausannoise « Plan Queer »

Salle d’attente de l’infirmerie
Salle d’escrime
Salle de conférence
Contact étudiant

Contacter l’étudiant

Remplissez le formulaire ci-dessous pour prendre contact avec l'étudiant. Votre message sera envoyé directement sur son adresse e-mail.