La mémoire des baignades sauvages dans la Marne
Les Bassins Léopold Bellan se situent dans à Bry-sur-Marne, ville réputée notamment pour ses bords de Marne où les habitants pouvaient se baigner librement jusque dans les années 70. À partir de cette date, les baignades sauvages ont été interdites à cause de la forte pollution de l’eau.
L’envie exprimée par les habitants de retrouver les sensations d’autonomie et de liberté qu’offraient les baignades sauvages a inspiré le concept des Bassins Léopold Bellan.
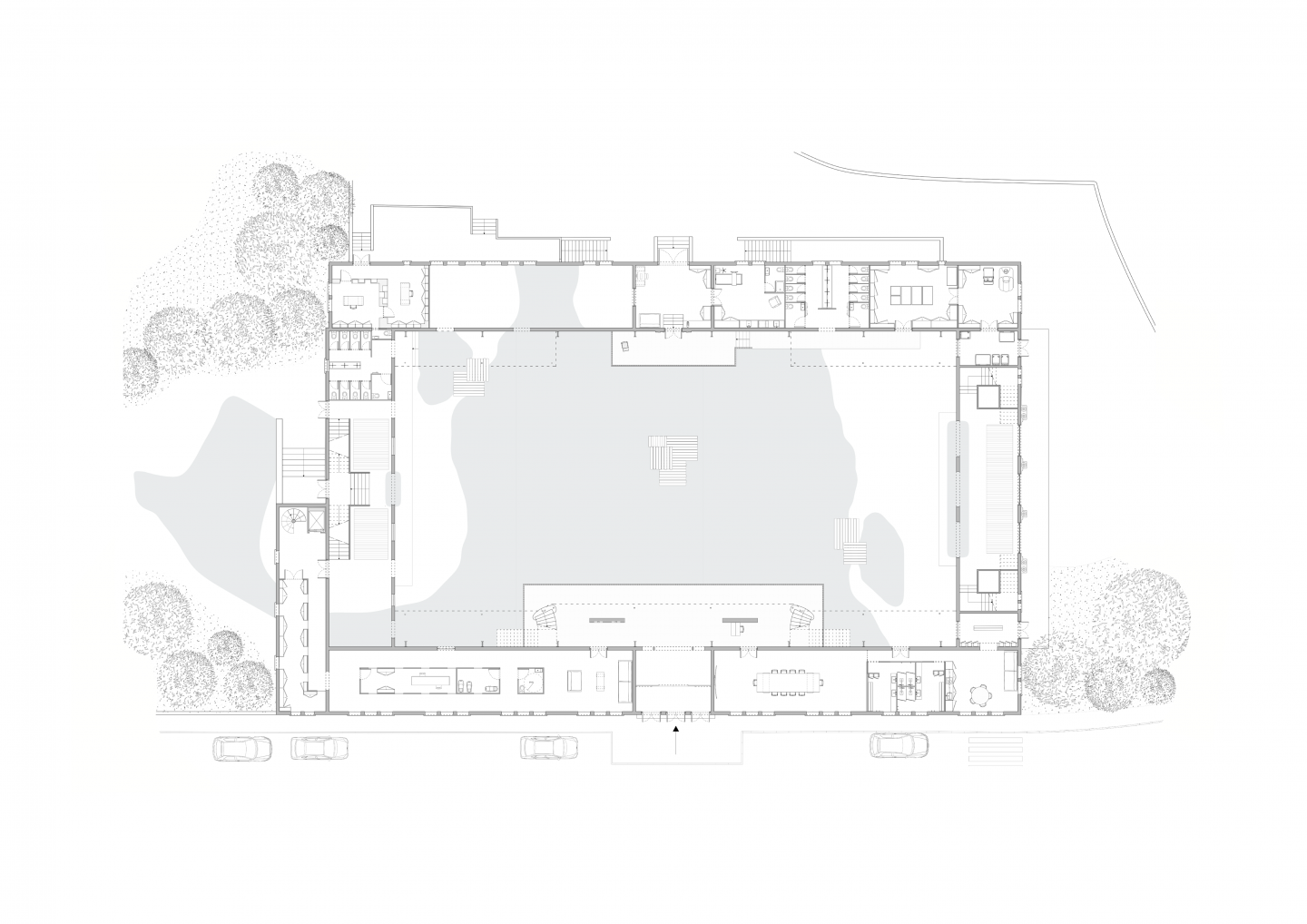
Des bassins aux lignes courbes
Les bassins sont dessinés de manière à donner l’impression que le bâtiment a été inondé. Ils ont une forme libre aux courbes progressives qui permettent de comprendre rapidement les jeux de profondeur et favoriser la sécurité des baigneurs.
Une immersion
Dans un univers hors du temps
Pour une baignade
Certains matériaux d’origine ont été conservés, d’autres réutilisés pour faire honneur à l’histoire de ce bâtiment inscrit aux monuments historiques. On les retrouve notamment dans le mobilier qui occupe les espaces annexes aux bassins.
Fanny Servolle
&
Léa Blasini


