Claire Boyadjis

BEAUME . Marseille



LE ROUCAS BLANC



LOVE + WORK


“Si on aime son travail, celui-ci n’a plus à être un facteur de stress, il ne puise plus dans notre énergie : il devient une source d’énergie.”

Marcus BuckinghamDesigning Work That People Love, Harvard Business Review, Mai 2022

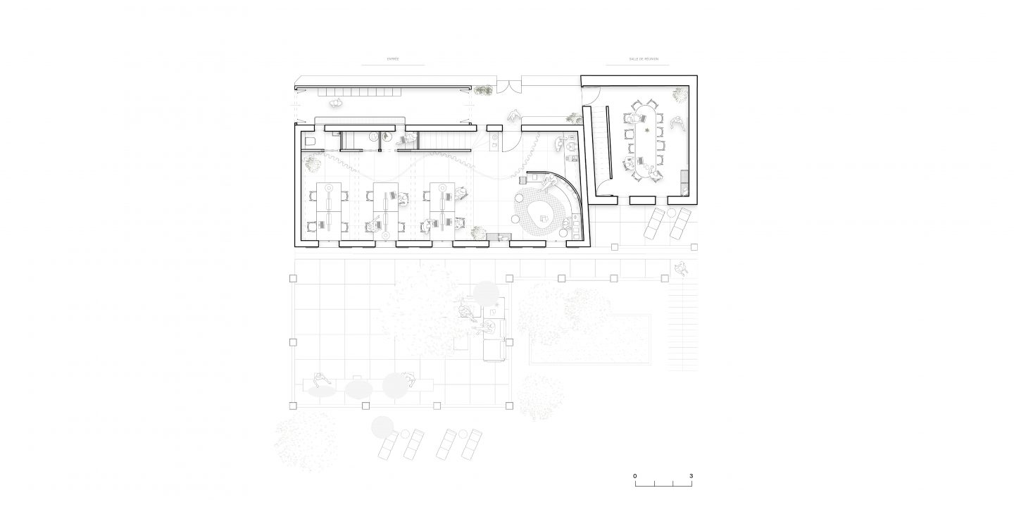
Rez-De-Chaussée


Plan Rez-De-Chaussée
Coupe perspective Rez-De-Chaussée
Postes de travail, Rez-de-Chaussée
Postes de travail, Rez-De-Chaussée

Rez-De-Terrasse


Plan Rez-De-Terrasse
Coupe perspective Rez-De-Terrasse
Espace Cuisine, Rez-de-Terrasse
Espace de travail, Rez-de-Terrasse
Jardin en restanques
Contact étudiant

Contacter l’étudiant

Remplissez le formulaire ci-dessous pour prendre contact avec l'étudiant. Votre message sera envoyé directement sur son adresse e-mail.